DỰ ÁN BIỆT THỰ KHU AN QUÝ LÔ ĐẤT: F07-L28
An Quý Villa (thuộc phân khu An Quý - Khu A) là một trong những phân khu biệt thự cao cấp nhất do Tập đoàn Nam Cường làm chủ đầu tư, nằm trong tổng thể Khu đô thị mới Dương Nội, phường Dương Nội, quận Hà Đông, Hà Nội .
Không chỉ đơn thuần là nơi ở, An Quý Villa còn được ví như "viên ngọc quý" giữa lòng phía Tây Hà Nội, nơi hội tụ của những gia chủ yêu cầu cao về không gian sống xanh, kiến trúc hiện đại và sự riêng tư tuyệt đối.
2. Vị Trí “Vàng” Và Kết Nối Giao Thông
Một trong những yếu tố làm nên giá trị của Hồ sơ mẫu biệt thự Khu An Quý chính là vị trí chiến lược tại mặt đường Lê Quang Đạo kéo dài – trục huyết mạch kết nối liên vùng .
Cư dân sống tại đây có thể tận hưởng lợi thế "3 mặt giáp đường lớn":
-
Kết nối nội thành: Chỉ 10 phút di chuyển xuống phố Trung tâm qua trục Tố Hữu – Lê Văn Lương.
-
Kết nối liên tỉnh: Nhanh chóng tiếp cận Đại lộ Thăng Long, Quốc lộ 6 và Vành đai 4.
-
Tiếp giáp trung tâm hành chính: Gần trụ sở Huyện ủy, UBND huyện Hoài Đức và các sở ban ngành.
Ngoài ra, dự án nằm ngay sát khu đất thương mại dịch vụ và công viên cây xanh, đảm bảo tầm nhìn thoáng đãng vĩnh viễn .
3. Hệ Sinh Thái Tiện Ích Đẳng Cấp
Sở hữu một căn biệt thự tại Khu An Quý đồng nghĩa với việc bạn đang sở hữu toàn bộ chuỗi tiện ích "nội khu - ngoại khu" đạt chuẩn Resort quốc tế .
-
Giáo dục liên cấp: Trường THCS Lê Quý Đôn, Trường Quốc tế Nhật Bản (JIS), Trường Tiểu học Vạn Bảo.
-
Y tế chăm sóc sức khỏe: Bệnh viện Quốc tế Hà Đông, BV Quân y 103.
-
Mua sắm & Giải trí: Aeon Mall Hà Đông, Siêu thị nội khu, các shop tiện ích.
-
Không gian xanh: Công viên Thiên Văn Học (12ha), Hồ Bách Hợp Thủy điều hòa khí hậu.
-
Thể thao: Sân tennis, bể bơi, khu thể thao phức hợp liền kề.
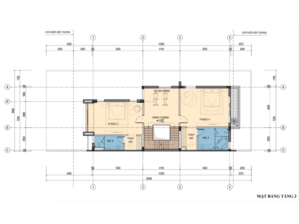
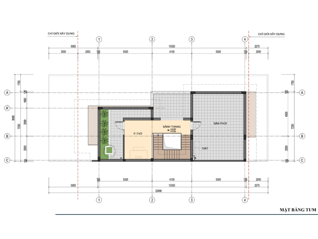
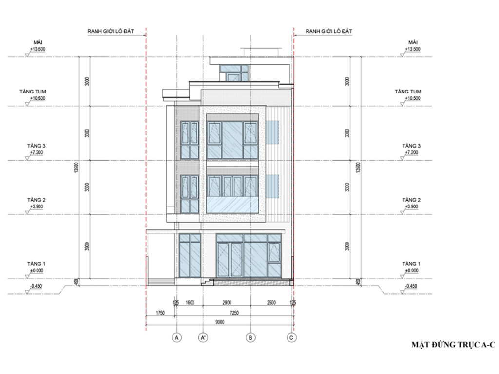
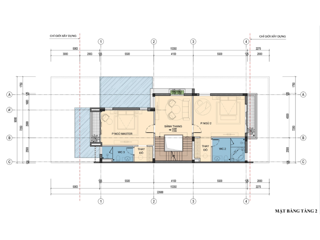
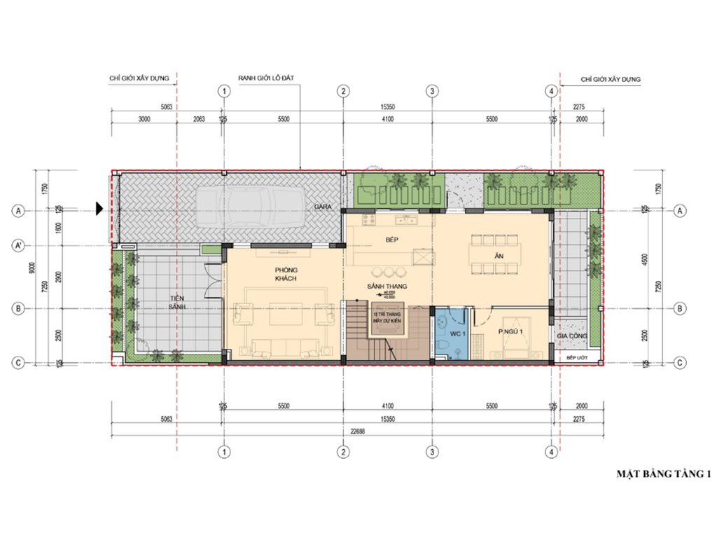
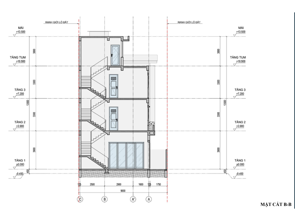
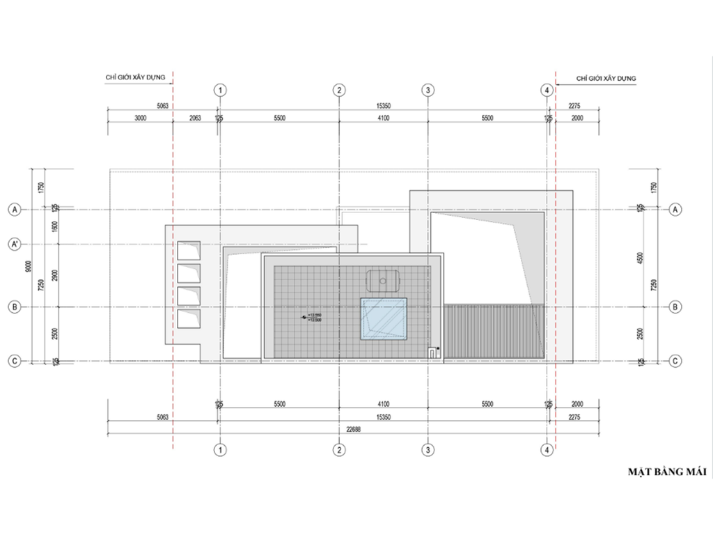
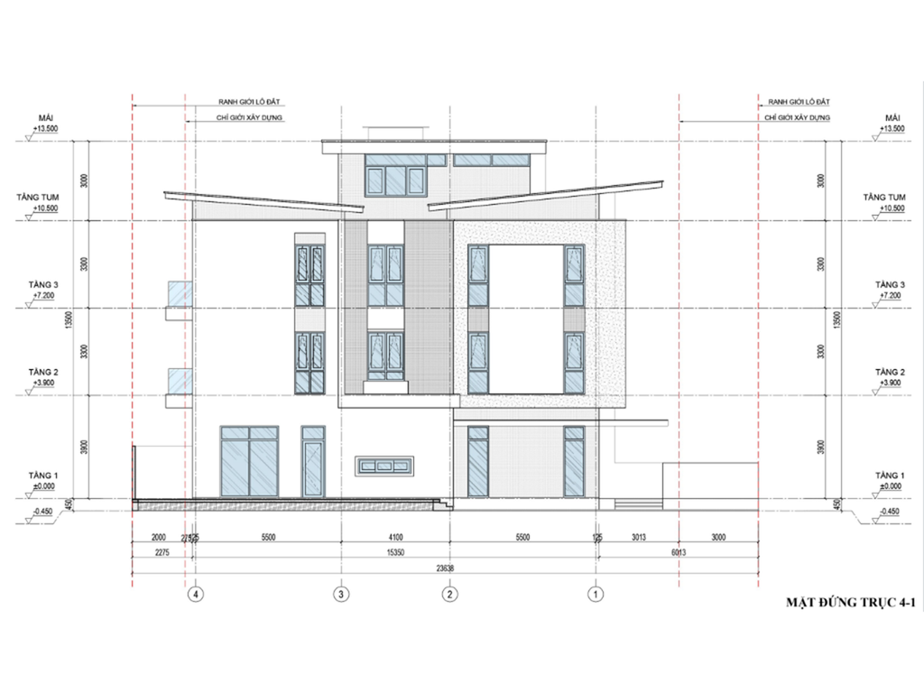
4. Quỹ Căn Mẫu & Thiết Kế Sang Trọng
Hồ sơ mẫu biệt thự Khu An Quý cho thấy sự đa dạng về diện tích, phù hợp với nhiều phân khúc từ đại gia đình đến các nhà đầu tư muốn khai thác thương mại.
5. Phân Tích Tiềm Năng Đầu Tư
Tại sao Hồ sơ biệt thự Khu An Quý luôn được các nhà đầu tư "săn đón"?
-
Tính khan hiếm: Khu A (Dương Nội 1) là khu vực có mật độ thấp tầng cao cấp, đã hình thành cộng đồng dân cư đông đúc. Quỹ đất dành cho biệt thự mới tại khu vực này gần như không còn.
-
Tăng trưởng hạ tầng: Hàng loạt dự án giao thông trọng điểm như cầu Vĩnh Thịnh, Vành đai 4 đang được triển khai, thúc đẩy giá trị bất động sản khu vực phía Tây.
-
Giá trị khai thác: Với vị trí mặt đường Lê Quang Đạo và Tố Hữu, các căn biệt thự tại đây rất thích hợp để cho thuê làm văn phòng, showroom, hoặc nhà hàng với dòng tiền ổn định .
6. Kết Luận: Tầm Nhìn Xanh, Đẳng Cấp Xanh
Khu An Quý - KĐT Dương Nội không chỉ là nơi an cư lý tưởng với không gian sống xanh, mát mẻ nhờ công viên và hồ điều hòa, mà còn là tài sản gia truyền bền vững cho các thế hệ.
-- 🏠 LIÊN HỆ TƯ VẤN & ĐẶT LỊCH XEM NHÀ ---
Người đại diện: Mr Nguyên
Số điện thoại: 0703.20.20.20
Lưu ý: Thông tin tin đã được xác thực. Mọi giao dịch sẽ được thực hiện đúng quy trình, minh bạch và nhanh chóng.
Rất hân hạnh được hỗ trợ và tư vấn chi tiết nhất về căn nhà!







